Page suivante
Page précédente
Chamonix-Mont-Blanc (74400)

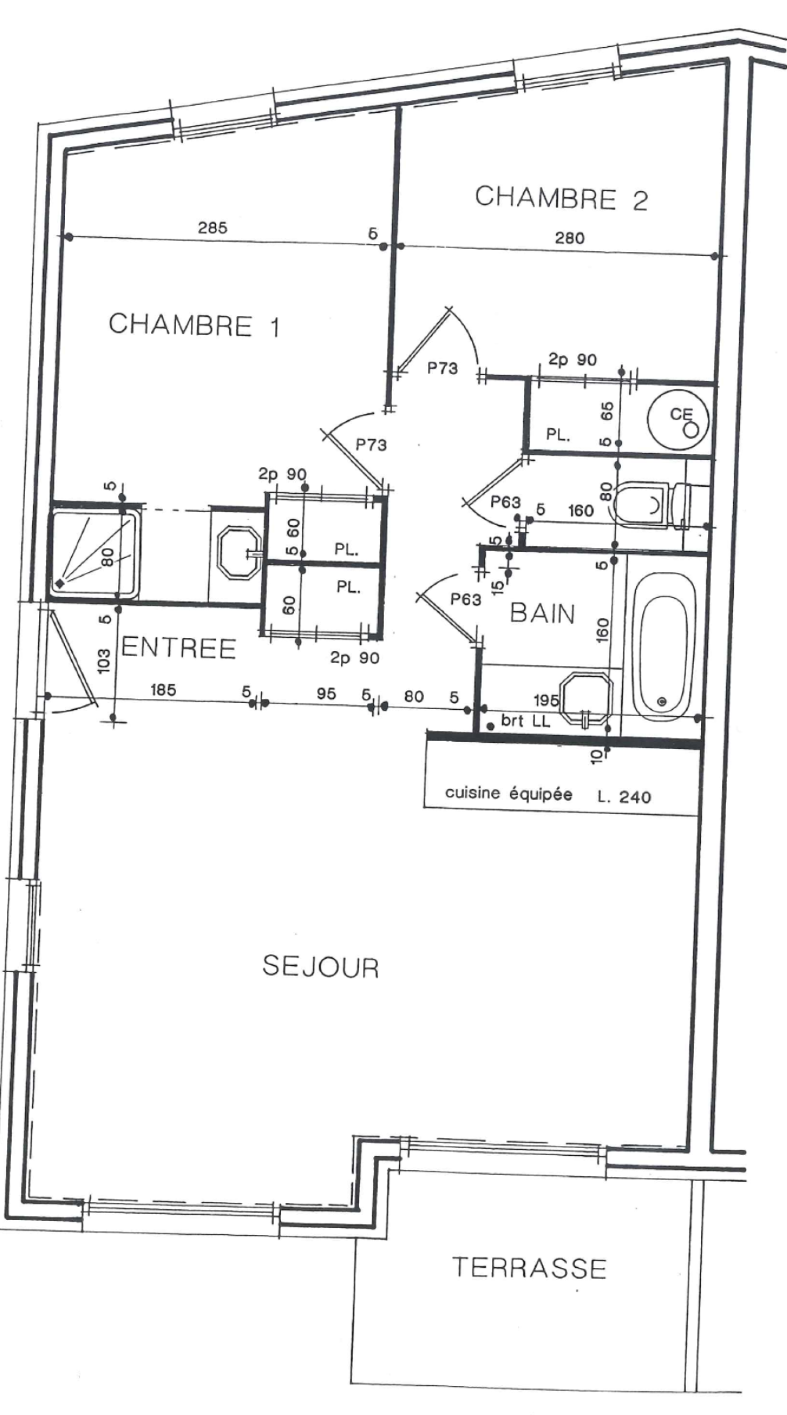
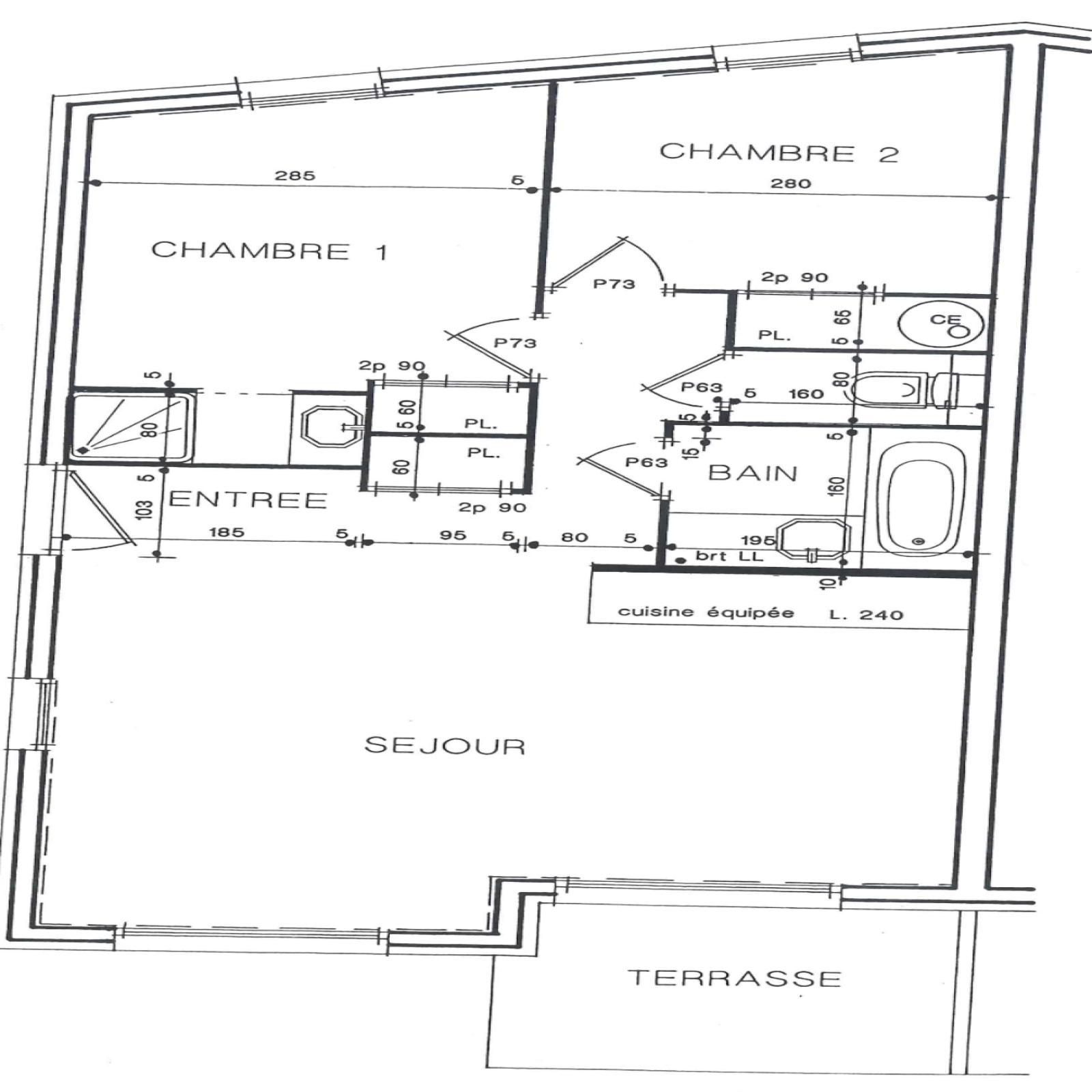
Appartement 3 pièce(s) 2 chambre(s) 51.03 m²

1
1
Balcon
616 550 €
Réf Dans les Etoiles

SOUS OFFRE / Au cœur de Chamonix Mont-Blanc, cet appartement traversant d'environ 50 m², idéalement situé au rez-de-chaussée d'une résidence à taille humaine, vous offre une vue dégagée imprenable sur le Massif du Mont-Blanc. Un bien rare sur le marché, offrant à la fois tranquillité et proximité des commodités.

Caractéristiques principales :

  • Surface : 50 m²
  • Pièces : 3 pièces, dont 2 chambres, avec une suite parentale
  • Salle de bains supplémentaire pour un confort optimal
  • Cuisine américaine moderne, entièrement équipée
  • WC séparé

L’appartement, en très bon état, est idéal pour ceux recherchant un bien lumineux, avec une belle orientation traversante. Vous serez séduit par son cadre calme et verdoyant, tout en étant à seulement 10 minutes à pied de la rue piétonne, cœur battant de Chamonix, et proche de l’arrêt de bus.

Les atouts de ce bien :

  • Vue dégagée sur le massif du Mont-Blanc
  • Secteur calme et recherché, offrant une qualité de vie exceptionnelle
  • Parking couvert privatif en sous-sol pour un stationnement facilité
  • Cave et casier à ski, pratiques pour votre rangement
  • Faibles charges de copropriété, un atout rare à Chamonix

La recommandation de l'agence pour améliorer la perfomance énergétique de ce logement : Changement du ballon d'eau chaude par un thermodynamique (24% de la consommation totale du logement).

Bilan énergétique

Diagnostics énergetiques
A propos de ce bien Caractéristiques de ce bien
  • Surface 51,03 m²
  • carrez 50,61 m²
  • séjour 25 m²
  • 2 chambre(s)
  • 1 salle(s) de bain
  • 1 salle(s) d'eau
  • cuisine américaine (équipée)
  • Chauffage individuel : convecteur (electrique)
  • exposition Sud
  • 2 étage(s)
  • vue Mont Blanc et Glacier des Bossons
  • cave
  • balcon
  • quartier Les Pècles

Info copro

Copropriété
  • Copropriété Oui
  • Lot n° 33
  • Nombre de lots 39
  • Quote part annuelle des charges 1 197 €

Financier

Informations financières
Prix de vente honoraires TTC inclus 616 550 €
Prix net vendeur 590 000 €
Prix de vente honoraires TTC exclus 590 000 €
Honoraires TTC à la charge acquéreur 4,5 %
Charges 99 €

Autour du bien

Découvrez le quartier

Simulation

Calcul des mensualités
* Champs obligatoires