Page suivante
Page précédente
Les Praz de Chamonix (74400)

Appartement

810 634 €
Réf ADRET DES PRAZ B11

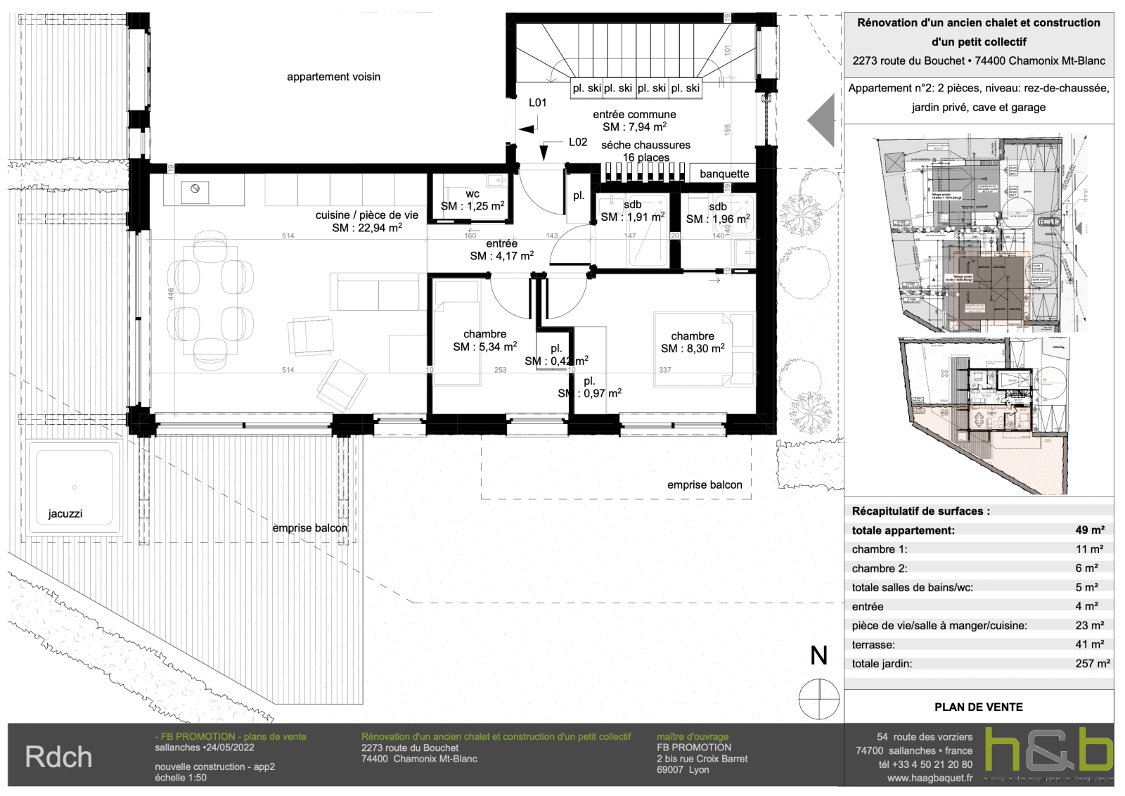
A deux pas de la télécabine de la Flégère et du Golf de Chamonix, venez vous installer dans ce magnifique appartement en Rez-de jardin avec vue imprenable sur le Mont-Blanc.

Prestations haut-de gamme, cheminée, jacuzzi, salle de sport collective.

Une chambre en suite avec placard, une deuxième chambre avec placard, vaste séjour, salle de bain indépendant, WC indépendant, entrée avec placard à ski, terrasse de 41 m2 et jardin privatif.

En annexe un garage en sous-sol, une cave et un parking extérieur.

Programme neuf, livraison 2024.

Bilan énergétique

Diagnostics énergetiques
A propos de ce bien Caractéristiques de ce bien
  • Surface 49 m²
  • carrez 49 m²
  • séjour 23 m²
  • 2 chambre(s)
  • 2 salle(s) de bain
  • construit en 2023
  • cuisine américaine (équipée)
  • Chauffage collectif : chaudière (pompe à chaleur)
  • 1 garage(s)
  • 1 parking(s)
  • 1 étage(s)
  • cave
  • terrasse

Info copro

Copropriété
  • Copropriété Oui

Financier

Informations financières
Prix de vente honoraires TTC inclus 810 634 €

Autour du bien

Découvrez le quartier

Simulation

Calcul des mensualités
* Champs obligatoires